Francis Melvin Rogallo is one of the pioneers of modern kiting sports. His works are leading directly to todays hanggliders and delta kites. Basis of his later developments was the Flexible Kite. A patent application of this kite was filed in 1948 and allowed in 1951. In fig. 5 and 6. he even suggested sticks for the keel and leading edges later found in the delta construction. He also provided the kite with a seven-leg bridle; today kite builders often leave out the bridle line on top of the kite.
Patent of Rogallos Flexible Kite
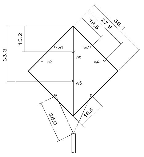
Flexible Kite Measurements
Constructional details:
Material: MYLAR, square 38 x 38 cm²
Bridle: The bridle lines on points w1 - w4 are 20 cm long, the bridle lines on points w5 - w6
are 24 cm long. All bridle line are knotted together to one bridle point.
The tail is also made from MYLAR and 2.5 cm wide and 80 cm long. The two lines for attaching the tail are 25 cm long.